Upper Floor Plan for 2265 Frank St.

 

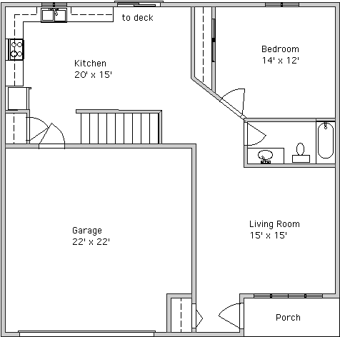
Lower Floor Plan for 2265 Frank St.

 

Back to Info