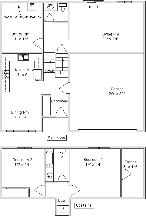
2253 Plan & Photos

 Front View

 



Rear View

Return to Decription