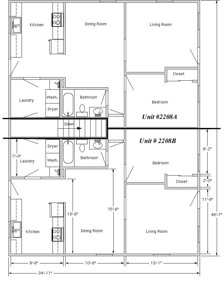
Return to Description