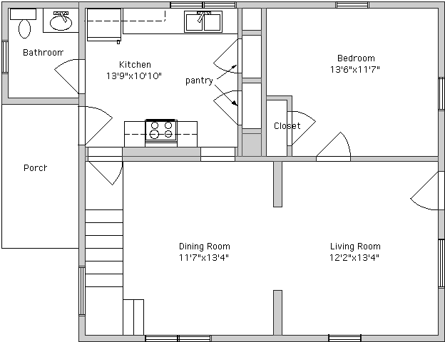
Main floor plan for unit #1106

 

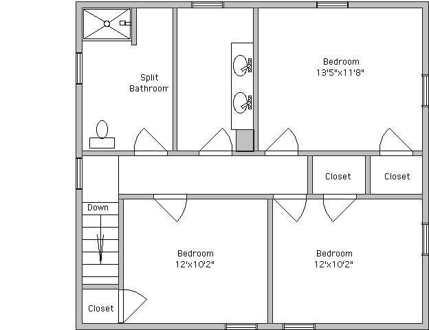
Second floor plan for unit #1106

 

Back to EC Rentals Main